產品中心
Product Center
推薦產品
Contact Us
最新資訊
Contact Us
聯系我們
Contact Us

地址:河北省泊頭市四營工業園
銷售熱線:13231718016
電話:0317-8192716
傳真:0317-8192716
網址:http://www.wangchengying888888.cn/
郵箱:2388941785@qq.com
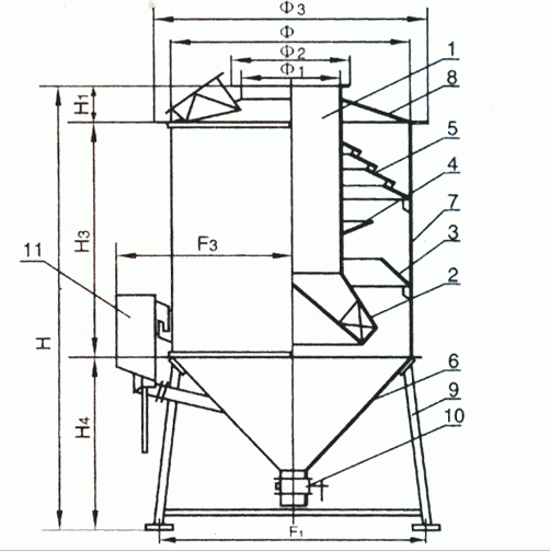
XST型旋流水浴脫硫除塵器
簡單說明:
XST型旋流水浴脫硫除塵器在濕式立窯除塵器開斗式濕式除塵器低壓文丘里除塵器XST型旋流水浴脫硫除塵器在濕式沖激除塵器中,水浴除塵器是最受歡迎一種,結構簡單造價低,便于維...
XST型旋流水浴脫硫除塵器濕式立窯除塵器,開斗式濕式除塵器,低壓文丘里除塵器,XST型旋流水浴脫硫除塵器,在濕式沖激除塵器中,水浴除塵器是最受歡迎一種,結構簡單造價低,便于維護管理的除塵器,此種類型已歷經15年以來的運行時間,充分證明其運行的穩定可靠,且可因地制宜用磚石或混凝土砌筑結構,適于較小容量鍋爐的煙氣凈化與脫硫。為了提高除塵脫硫效率,進一步對噴咀進行技術改造設計,吧兩項流體引旋流機制,促進了膜化與凝聚的形成,強化了鼓泡作用進一步提高了除塵與脫硫效能,該項產品取 XST型旋流水浴脫硫除塵器參數
型號 | 鍋爐容量t/h | ||||||
2 | 4 | 6 | 8 | 10 | 15 | 20 | |
風量范圍m3/h | 4600-6000 | 9000-11000 | 10000-13500 | 16000-22000 | 24000-28000 | 33000-37500 | 46000-54000 |
除塵效率% | 95-98 | ||||||
脫硫效率% | 75-80 | ||||||
阻力Pa | 600-800 | ||||||
林格曼黑度 | <1 | ||||||
分割粒徑uM | <1 | ||||||
水耗l/m3 | 0.10-0.30 |

【下一篇:濕式立窯除塵器 】
【 上一篇:BLS-118L濕式脫硫除塵器 】
- 2019-08-21除塵器風機流量小的原因及排除辦法
- 2021-01-03脈沖除塵器使故障排除方法
- 2019-08-31哪些工況不適合使用濾筒除塵器
- 2020-12-10散裝機伸縮布袋材質介紹
- 2024-03-11布袋除塵器排放10mg要求
- 2020-04-07除塵布袋如何選擇
- 2022-04-23電除塵器維護保養
- 2018-12-08防爆光氧催化設備的如何正確選擇
- 2020-06-13電磁脈沖閥漏氣原因分析?
- 2020-01-17除塵布袋積灰原因五要素
- 2019-03-15根據車間換氣次數計算除塵器處理風量
- 2023-02-04多管旋風除塵器特點分析
- 2021-10-29使用布袋除塵器需要考慮的問題
- 2019-02-25布袋除塵器的運行阻力如何巧妙控制
- 2020-05-23如何查找布袋除塵器冒灰現象
- 2020-04-07除塵布袋如何選擇
- 2024-02-19PPS覆膜布袋的優勢
- 2021-03-20除塵濾袋安裝五步走
- 2022-09-11氣力輸灰系統出現堵塞的常見幾種原因
- 2024-09-08為解決除塵器風量分布不均問題可以采取以下措